PROJECT RESIDENTIAL

LIVE NATURAL PREMIUM

Location | Taman Durian.Cheras
Size | Neutral | 2600sqft
Type | Terrace
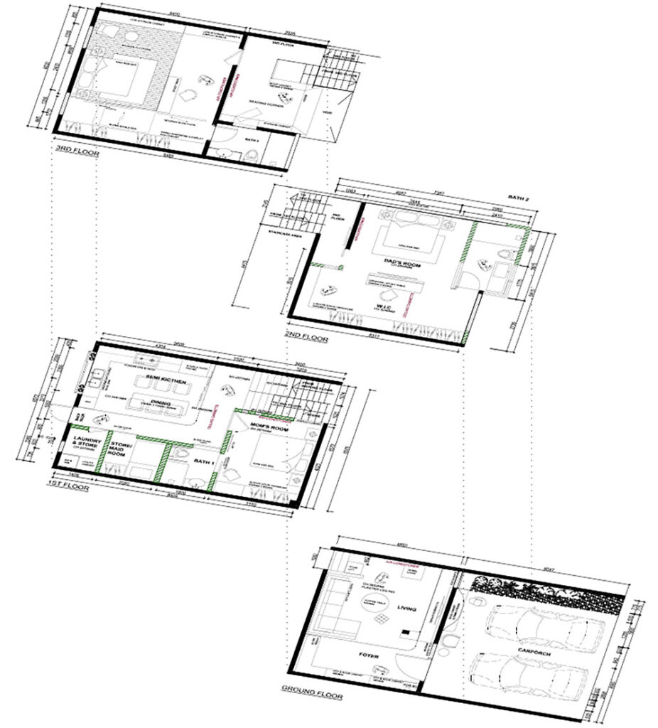
Build & Plan

Good Life In Old Age Home

‘We can jog with dog and say hello to all the people we know in the street’
‘We used to be here, having good neighbors & memories in this place’
舊家好生活
‘我們可以和狗一起慢跑,向街上所有認識的人問好’
‘我們曾經在這裡,在這個地方有好鄰居和回憶’

Location | Cheras, KL
Type | Intermediate 2-storey house
Size | 2,600 SQFT

BEFORE

The compressed space comes from the lower ceiling height and less sunlight.
压抑的空间 来自较低的天花板高度和较少的阳光。

AFTER MAKEOVER

Not for their own, but it’s for their beloved parent to stay in a better and comfortable environment.
設計簡報很簡單 “現代、簡潔、美觀”
不是為了他們自己,而是為了他們心愛的父母才能生活在一個更好、更舒適的環境中。

Beautifully scheme with off-white and gray
Oak and natural light are used to make the environment saturated and wide.
主色調是灰白色和灰色,運用橡木與自然光下使環境變得飽和,寬闊。

BEFORE

Narrow and steeply stairway.
狹窄而陡峭的樓梯。

AFTER MAKEOVER

Makeover for entire first floor for better and brighter space. Increase natural light and improved stairway safety.
改善緊迫的空間感與不良採光並增強樓梯踏階與扶手的安全規格。

‘’More is less’’
“簡單勝過精心裝飾”

Bathroom in grey comes will natural light.
採光式浴室使亞灰色磚牆看起來更有質感。

Ready to Plan Your Space Properly?
Start with a clear design direction before renovation begins.

Layout planning before build starts

Avoid costly changes later

Align design with lifestyle needs

Clear material & budget planning

Scroll to Top